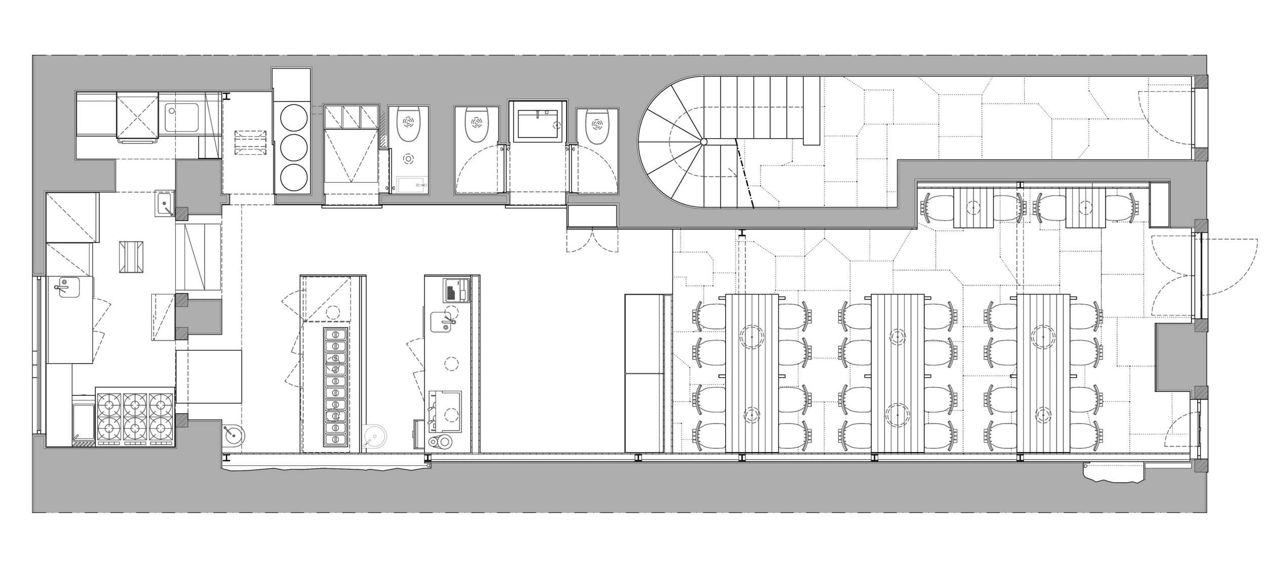
Restaurante nero belém
_
Co-autoria: Maria Rebelo Pinto, Célia Faria
Colaboração: Marco dos Santos, Laura Perez Calle
Área de Intervenção: 80 m2
Cliente: DALL Belém
Datas: 2012
Fotografia: FG+SG Fotografia de Arquitectura
Local: Lisboa
_
Co-autoria: Maria Rebelo Pinto, Célia Faria
Colaboração: Marco dos Santos, Laura Perez Calle
Área de Intervenção: 80 m2
Cliente: DALL Belém
Datas: 2012
Fotografia: FG+SG Fotografia de Arquitectura
Local: Lisboa