CCB Café
_
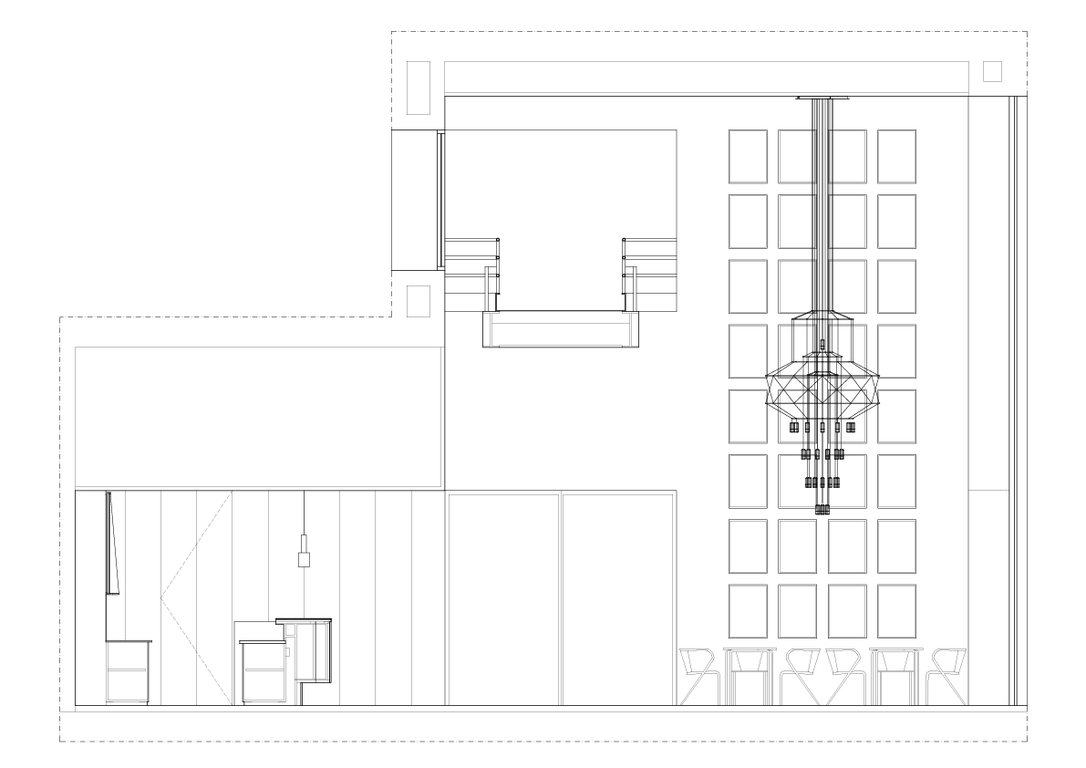
A ideia de levar a luz natural para dentro do espaço é feito através de molduras em valchromat preto que marcam um ritmo ao espaço por trás do retro-balcão, alinhámos candeeiros em aço preto suspensos sobre o balcão de atendimento. Na sala acentuámos a atmosfera do espaço de estar com uma côr verde sêco e suspendemos um candeeiro de finos arames negros que ocupa a dupla dimensão do pé direito (5,40m) e lhe confere um carácter escultórico. Lateralmente nas duas paredes paralelas colocámos molduras de côr preta que ocupam o duplo pé direito e nos trazem a memória dos espectáculos que ao longo dos anos tiveram lugar neste espaço.
Co-autoria: Célia Faria
Colaboração: Liliana Nóbrega, Pedro Tomé
Renders: Isabella Santos
Cliente: TOPO
Datas: 2016 - 2017
Fotografia: BICA Arquitectos
Local: Lisboa
