Casa herdade da malhada velha
_
Situada no alentejo, num extenso campo de oliveiras e sobreiros, encontramos uma construção de um armazém para guardar alfaias agrícolas e um espaço, entre quatro paredes, que se pretendia usar como casa de habitação da Quinta. Fizemos a sua reconstrução integral, de modo a podermos dotar dos espaços funcionais, necessários à sua habitabilidade.
A envolvente presença de sobreiros muito próxima da casa, com todo um carácter de grande expressividade, foi o ponto de partida para a escolha da materialidade das construções. Pintámos as paredes exteriores e interiores do edificado, no tom do saibro compactado, que envolve a casa, e colocámos telhas na cobertura e caixilharia nas janelas, com a côr dos troncos, castanho escuro, como forma de garantir a sua máxima integração.
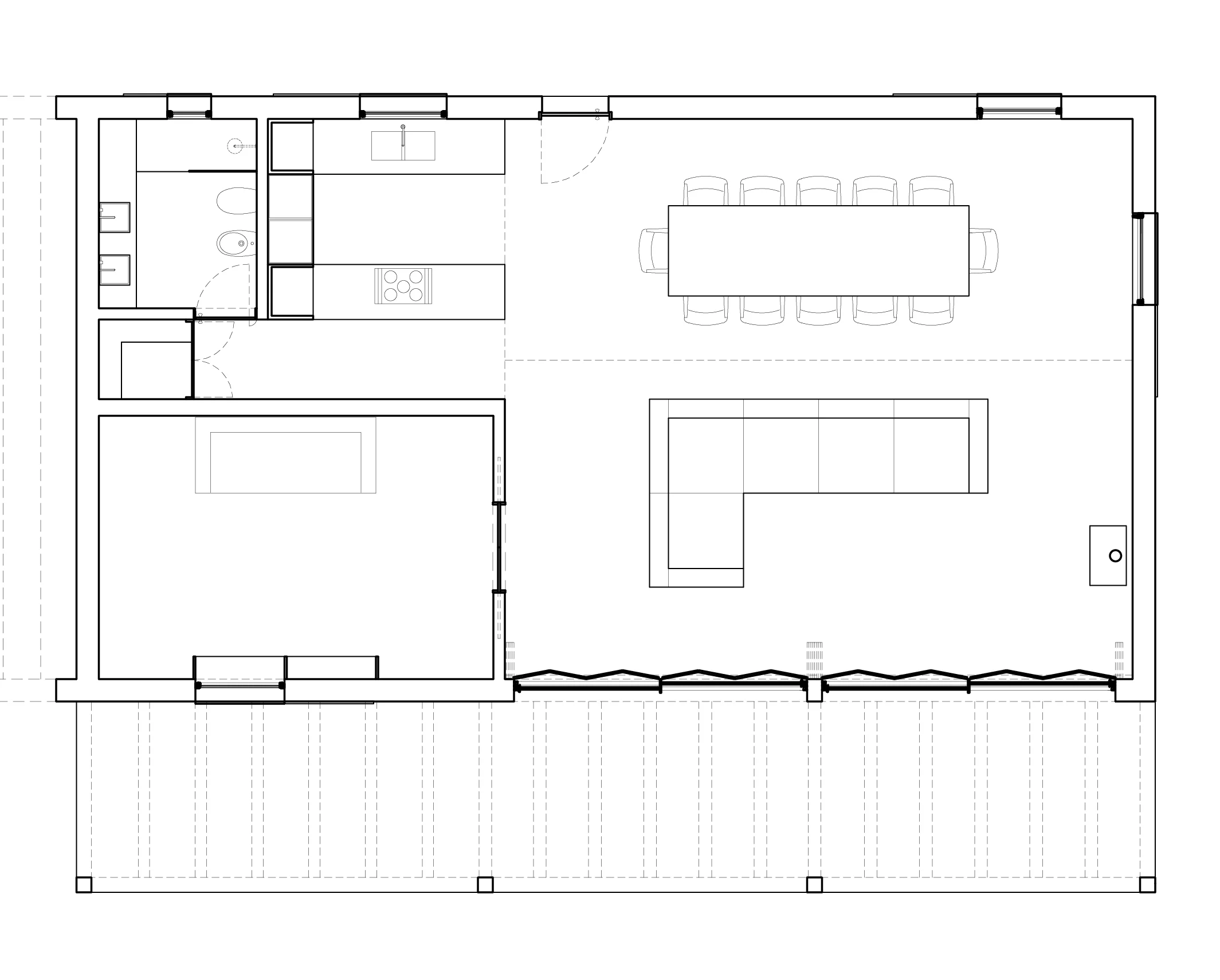
No interior abrimos vãos rasgados em toda a extensão do alçado da sala e prolongámos o telhado, para criar uma zona alpendrada exterior, permitindo que toda a paisagem invada o interior.
Produzimos um óculo de luz natural, na fachada lateral, como memória dos antigos celeiros, cuja forma curva se prolonga ao longo do corredor da casa e, do lado oposto, se espelha em forma de um óculo/candeeiro, de iluminação artificial.
Os elementos da carpintaria interior são desenhados e construídos em madeira de nogueira, como as portas e as portadas e a mesa de refeições. O sofá da sala apoia-se numa grande base em aglomerado negro de cortiça, numa transposição da natureza exterior para o interior do habitar.
Colaboração: Pedro Tomé
Área de Intervenção: 572 m2
Cliente: Particular
Datas: 2018 - 2019
Fotografia: BICA Arquitectos
Local: Herdade da Malhada Velha - Ferreira do Alentejo
